3 Room Apartement in Crest-Voland - 6 people
Crest-Voland / Cohennoz studio + cabin, studio + cabin + alcove apartment, studio + cabin + mezzanine, two rooms + cabin + mezzanine apartment, three rooms apartment, three rooms + alcove apartment, three rooms + cabin apartment, three rooms + mezzanine apartment, three rooms + cabin + mezzanine apartment, four rooms + cabin apartment six rooms + cabin apartment 50 square meters StudioDescription
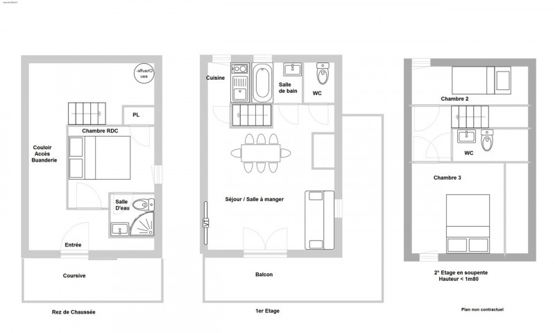
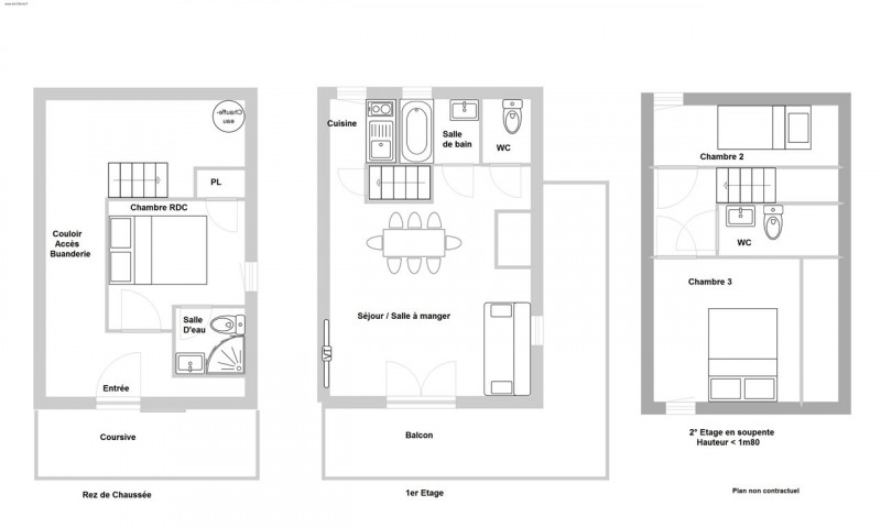
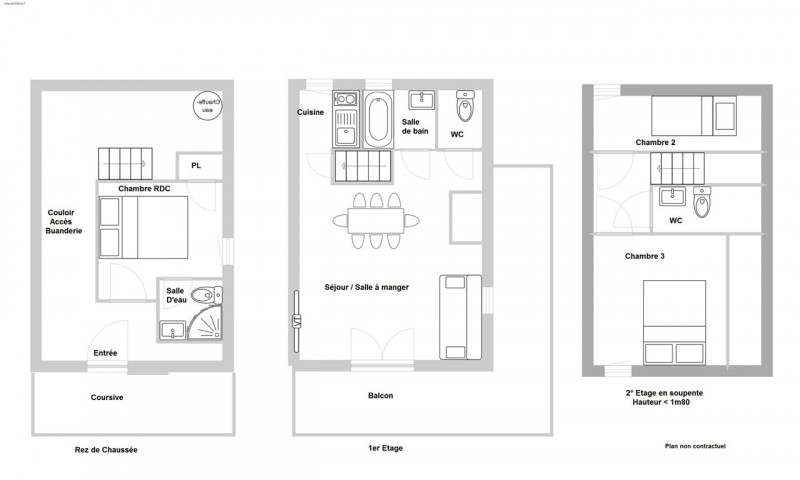
This 50m² flat comprises a bedroom with a double bed, a shower room with WC and a laundry room on the ground floor. On the first floor, you will find a living room with a sofa bed, a kitchenette and a bathroom with separate WC. The second floor consists of a bedroom with a double bed under the eaves, a cabin with a single bed under the eaves and a separate WC.
A narrow staircase leads to floors 1 and 2.
The chalet has a separate garage where you can park your car for the duration of your stay. The chalet is divided into two similar apartments, approximately 500 metres from the slopes and the centre of the village of Crest-Voland.
This accommodation is located between the Cernix and Crest-Voland slopes, so you have a choice! Experienced skiers can return to the chalet on skis.
This apartment is classified as a 1-star furnished tourist accommodation.
End-of-stay cleaning and bed linen and towels are not included.
Additional services subject to availability: bed linen and towel pack, end-of-stay cleaning, Wi-Fi box, baby kit, kitchen linen.
Please note that a deposit will be required upon arrival.
Pets are accepted for an additional fee of €39.
PLEASE NOTE: Your agency is now located at 44 route de Megève in Praz-sur-Arly (74120).
A narrow staircase leads to floors 1 and 2.
The chalet has a separate garage where you can park your car for the duration of your stay. The chalet is divided into two similar apartments, approximately 500 metres from the slopes and the centre of the village of Crest-Voland.
This accommodation is located between the Cernix and Crest-Voland slopes, so you have a choice! Experienced skiers can return to the chalet on skis.
This apartment is classified as a 1-star furnished tourist accommodation.
End-of-stay cleaning and bed linen and towels are not included.
Additional services subject to availability: bed linen and towel pack, end-of-stay cleaning, Wi-Fi box, baby kit, kitchen linen.
Please note that a deposit will be required upon arrival.
Pets are accepted for an additional fee of €39.
PLEASE NOTE: Your agency is now located at 44 route de Megève in Praz-sur-Arly (74120).
- diswasher

- parking / garage

- television

- pets allowed

In short
- ACCOMMODATION TYPE :
- studio + cabin
- studio + cabin + alcove apartment
- studio + cabin + mezzanine
- two rooms + cabin + mezzanine apartment
- three rooms apartment
- three rooms + alcove apartment
- three rooms + cabin apartment
- three rooms + mezzanine apartment
- three rooms + cabin + mezzanine apartment
- four rooms + cabin apartment
- six rooms + cabin apartment
- MAXIMUM CAPACITY :
- 6 people
- Location :
- Crest-Voland / Cohennoz - Le Village
- SURFACE :
- 50 square meters
- FLOOR FROM THE GROUND :
- Ground floor
- Snow floor
- Extra height ground floor
- PETS :
- pets allowed
- pets allowed with extra charge
- small pets accepted
- CABIN :
- 1 single bed(ss
- LIVING ROOM :
- 1 pull-out sofa bed
- ROOM 1 :
- 1 double bed(s)
- ROOM 2 :
- 1 double bed(s)
- BATHROOMS :
- bathroom(s) with bathtub
- bathroom(s) with shower
- LAVATORY :
- 3 Separate toilets or inside bathroom
- SUB-SLOPE :
- 1 double bed(s)
- VIEW :
- on the mountains
- mountain
- DISTANCE BETWEEN SHUTTLE STOPS / TOURIST OFFICE / AQUATIC CENTER AND BOWLING :
- 600 metres approximately from the resort centre (Tourist Office)
- 600 meters from the village / shops
- DISTANCE GATHERINGS SKI COURSES / KINDERGARDEN / CHILDCARE :
- 250 meters approximately from the ESF centre station gathering
- 250 meters approximately from kindergarden (3/4 years old) / ESF centre station childcare (2/3 years old)
- DISTANCE FROM SHOPS :
- 600 meters approximately from shops.
Equipments
- PARKING / GARAGE :
- garage included (box)
- EQUIPMENTS :
- ski locker
- vacuum cleaner
- Laundry room
- KITCHEN EQUIPMENTS :
- oven
- micro-wave / grill
- grill oven
- baking trays
- dishwasher
- fridge
- MULTIMEDIA EQUIPMENTS :
- television
- OUTSIDE :
- balcony
En complément
- SERVICES :
- sheet rental
- bathroom linen rental
- cleaning with extra charge
- ADDITIONAL SERVICES :
- sheets rental
- linen rental
- cleaning at the end of the stay
Availabilities and Prices
Destination
1703 route de Bel’Avoine
Appartement n°23
73590
CREST VOLAND
GPS coordinates
Latitude : 45.787747
Longitude : 6.504237
- VIEW :
- on the mountains
- mountain































